Lot 16 - Stegen
1.048.000 €
Référence : 86676396
Type de bien : Maison jumelée
Lieu : Stegen
DPE (Diagnostique de Performance Energétique) : A
Classe d'isolation thermique : A+
GES (Gaz à Effet de Serre) : A+
Année construction : 2029
Etat du bien : Neuf
- Description
-
Nouveau lotissement « Nic Meiter – Thiergart » à Stegen
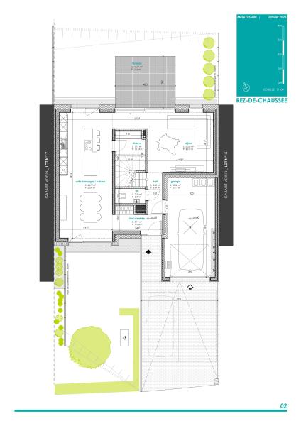
LOT 16: maison unifamiliale en bande sur un terrain de 4,17 ares avec une surface habitable de +/- 160 m2 et une surface totale de +/-285m2 comprenant:
Au rez-de-chaussée :
- garage pour 1 voiture avec un emplacement extérieur pour 2 voitures
- cuisine spacieuse avec accès vers la terrasse de 15,11m2 et le jardin
- grand séjour
- hall d'entrée
- réserve
- WC privatif
1er étage :
- 3 chambres
- 1 chambre parentale avec salle de douche et dressing
- 1 salle de bain
- buanderie
Combles :
- combles aménageables de 65,45 m2
- local technique de 21,60 m2
Prix LOT 16 à p. de : 1.098.000,- € (TVA 17% - pour investissement)
Pour plus d'informations veuillez contacter :
Fischbach Realtors & Developers
immo.fischbach@fischbach.lu
+352 45 71 30 1
--
Situation
Stegen est un petit village calme à l’est du Luxembourg qui appartient à la commune de la Vallée de l’Ernz dans le canton de Diekirch. La commune a été créée en 2012 par la fusion des communes d’Ermsdorf et de Medernach. Elle se compose des localités d’Ermsdorf, Eppeldorf, Folkendange, Keiwelbach, Medernach, Stegen et Savelborn ainsi que d’une quinzaine de fermes et de maisons individuelles.
La commune dispose d’une salle de sport à Medernach et d’un centre de football avec deux terrains synthétiques, nouvellement aménagés au lieu-dit «Bloen Eck» à Stegen. On y trouve également un café-restaurant bien connu du même nom. L’église Saint-Barthélemy au centre de Stegen a été déclarée monument nationale en 2021.
Stegen n’est qu’à 10 minutes en voiture du centre d’Ettelbruck. On y trouve une multitude de restaurants, de magasins et d’écoles ainsi que le Centre Hospitalier du Nord. À Ingeldorf (10 minutes en voiture) sont plusieurs grands supermarchés, des magasins d’électroménager et de meubles ainsi que divers ateliers de voitures. À Diekirch (15 minutes en voiture), vous trouverez une grande variété de restaurants et cafés ainsi qu’un cinéma.
Écoles
Le bâtiment scolaire d’Ermsdorf accueille les enfants du cycle 1 qui habitent dans les localités d’Ermsdorf, Eppeldorf, Stegen, Folkendange ou Keiwelbach. L’infrastructure scolaire de Medernach, qui comprend trois bâtiments, dont deux sont destinés à l’enseignement précoce et préscolaire et un à l’enseignement fondamental des cycles 2.1. à 4.2., accueille environ 250 élèves. La commune de la Vallée de l’Ernz fait actuellement construire un nouveau complexe scolaire pour l’ensemble de la commune à Medernach, qui comprend également une nouvelle maison relais ainsi qu’un nouveau gymnase. Les travaux devraient être terminés pour l’année scolaire 2021/2022.
Dans les environs, il y a plusieurs lycées à Ettelbruck, Diekirch ainsi qu’à Luxembourg-ville, tous desservis par les transports en commun et donc facilement accessibles.
A Stegen, il y a également une école d’équitation qui propose des cours d’équitation professionnels et organise des tournois.
Transports
L’arrêt de bus «Bloen Eck» se trouve à proximité immédiate et est desservi par les lignes de bus 101, 105, 409, 504 et 507.
Ligne 101: Limpertsberg/LTC – Heffingen – Ettelbruck/LT
Ligne 105: Junglinster – Ettelbruck
Ligne 409: Mersch – Larochette – Stegen
Ligne 504: Ettelbruck – Haller
Ligne 507: Diekirch – Ettelbruck – Grevenmacher
Les lignes 101 et 507 desservent en outre les lycées de Luxembourg, Ettelbruck et Diekirch pendant la période scolaire.
La gare la plus proche est à Ettelbruck (15 minutes en voiture) et est desservie par la ligne 10 du réseau des Chemins de fer luxembourgeois (CFL), qui relie la ville de Luxembourg à Troisvierges. La gare fait actuellement l’objet d’une rénovation complète. Un parking relais « Park & Ride » de plus de 400 places et une nouvelle gare routière font partie du projet. Luxembourg-Gare est accessible en 30 minutes en train.
Grâce à l’accès proche à l’autoroute A7 via Ingeldorf, Kirchberg est à uniquement 30 minutes en voiture. Les villes de Mersch et de Esch-sur-Alzette sont à 15 respectivement 50 minutes en voiture.
Distances
Gare Ettelbruck: 8,5 km
Gare Diekirch: 7,9 km
Centre Hospitalier du Nord: 9,8 km
Bâtiment scolaire Medernach: 4,0 km
Bâtiment scolaire Ermsdorf: 4,5 km
Gymnase Medernach: 3,9 km
Cinéma «Scala» Diekirch: 8,3 km
Ville de Luxembourg: 41,6 km
Aéroport: 37,5 km
--
L'excellent emplacement tout comme la construction et la conception architecturale, la finition de qualité ainsi que l'isolation thermique, garantissent à tout investisseur une stabilité assurée du capital engagé et un rendement adéquat certain et un confort de vie haut de gamme pour l’acquéreur voulant habiter ce bien.
FISCHBACH Realtors & Developers vous propose des objets sélectionnés, pour répondre à la demande de notre clientèle.
N‘hésitez pas à consulter notre site WWW.FISCHBACH.LU pour découvrir de photos supplémentaires et nos autres biens.Pour plus d'informations veuillez contacter :
Fischbach Realtors & Developers
immo.fischbach@fischbach.lu
+3524571301Resume
Nouveau lotissement « Nic Meiter – Thiergart » à Stegen LOT 16: maison unifamiliale en bande sur un terrain de 4,17 ares avec une surface habitable de +/- 160 m2 et une surface totale de +/-285m2 comprenant: Au rez-de-chaussée : - garage pour 1 voiture avec un emplacement extérieur pour 2 voitures - cuisine spacieuse avec accès vers la terrasse de 15,11m2 et le jardin - grand séjour - hall d'entrée - réserve - WC privatif 1er étage : - 3 chambres - 1 chambre parentale avec salle de douche et dressing - 1 salle de bain - buanderie Combles : - combles aménageables de 65,45 m2 - local technique de 21,60 m2 Prix LOT 16 à p. de : 1.098.000,- € (TVA 17% - pour investissement) Pour plus d'informations veuillez contacter : Fischbach Realtors & Developers immo.fischbach@fischbach.lu +352 45 71 30 1 -- Situation Stegen est un petit village calme à l’est du Luxembourg qui appartient à la commune de la Vallée de l’Ernz dans le canton de Diekirch. La commune a été créée en 2012 par la fusion des communes d’Ermsdorf et de Medernach. Elle se compose des localités d’Ermsdorf, Eppeldorf, Folkendange, Keiwelbach, Medernach, Stegen et Savelborn ainsi que d’une quinzaine de fermes et de maisons individuelles. La commune dispose d’une salle de sport à Medernach et d’un centre de football avec deux terrains synthétiques, nouvellement aménagés au lieu-dit «Bloen Eck» à Stegen. On y trouve également un café-restaurant bien connu du même nom. L’église Saint-Barthélemy au centre de Stegen a été déclarée monument nationale en 2021. Stegen n’est qu’à 10 minutes en voiture du centre d’Ettelbruck. On y trouve une multitude de restaurants, de magasins et d’écoles ainsi que le Centre Hospitalier du Nord. À Ingeldorf (10 minutes en voiture) sont plusieurs grands supermarchés, des magasins d’électroménager et de meubles ainsi que divers ateliers de voitures. À Diekirch (15 minutes en voiture), vous trouverez une grande variété de restaurants et cafés ainsi qu’un cinéma. Écoles Le bâtiment scolaire d’Ermsdorf accueille les enfants du cycle 1 qui habitent dans les localités d’Ermsdorf, Eppeldorf, Stegen, Folkendange ou Keiwelbach. L’infrastructure scolaire de Medernach, qui comprend trois bâtiments, dont deux sont destinés à l’enseignement précoce et préscolaire et un à l’enseignement fondamental des cycles 2.1. à 4.2., accueille environ 250 élèves. La commune de la Vallée de l’Ernz fait actuellement construire un nouveau complexe scolaire pour l’ensemble de la commune à Medernach, qui comprend également une nouvelle maison relais ainsi qu’un nouveau gymnase. Les travaux devraient être terminés pour l’année scolaire 2021/2022. Dans les environs, il y a plusieurs lycées à Ettelbruck, Diekirch ainsi qu’à Luxembourg-ville, tous desservis par les transports en commun et donc facilement accessibles. A Stegen, il y a également une école d’équitation qui propose des cours d’équitation professionnels et organise des tournois. Transports L’arrêt de bus «Bloen Eck» se trouve à proximité immédiate et est desservi par les lignes de bus 101, 105, 409, 504 et 507. Ligne 101: Limpertsberg/LTC – Heffingen – Ettelbruck/LT Ligne 105: Junglinster – Ettelbruck Ligne 409: Mersch – Larochette – Stegen Ligne 504: Ettelbruck – Haller Ligne 507: Diekirch – Ettelbruck – Grevenmacher Les lignes 101 et 507 desservent en outre les lycées de Luxembourg, Ettelbruck et Diekirch pendant la période scolaire. La gare la plus proche est à Ettelbruck (15 minutes en voiture) et est desservie par la ligne 10 du réseau des Chemins de fer luxembourgeois (CFL), qui relie la ville de Luxembourg à Troisvierges. La gare fait actuellement l’objet d’une rénovation complète. Un parking relais « Park & Ride » de plus de 400 places et une nouvelle gare routière font partie du projet. Luxembourg-Gare est accessible en 30 minutes en train. Grâce à l’accès proche à l’autoroute A7 via Ingeldorf, Kirchberg est à uniquement 30 minutes en voiture. Les villes de Mersch et de Esch-sur-Alzette sont à 15 respectivement 50 minutes en voiture. Distances Gare Ettelbruck: 8,5 km Gare Diekirch: 7,9 km Centre Hospitalier du Nord: 9,8 km Bâtiment scolaire Medernach: 4,0 km Bâtiment scolaire Ermsdorf: 4,5 km Gymnase Medernach: 3,9 km Cinéma «Scala» Diekirch: 8,3 km Ville de Luxembourg: 41,6 km Aéroport: 37,5 km -- L'excellent emplacement tout comme la construction et la conception architecturale, la finition de qualité ainsi que l'isolation thermique, garantissent à tout investisseur une stabilité assurée du capital engagé et un rendement adéquat certain et un confort de vie haut de gamme pour l’acquéreur voulant habiter ce bien. FISCHBACH Realtors & Developers vous propose des objets sélectionnés, pour répondre à la demande de notre clientèle. N‘hésitez pas à consulter notre site WWW.FISCHBACH.LU pour découvrir de photos supplémentaires et nos autres biens.Beschreibung
Nouveau lotissement « Nic Meiter – Thiergart » à Stegen LOT 16: maison unifamiliale en bande sur un terrain de 4,17 ares avec une surface habitable de +/- 160 m2 et une surface totale de +/-285m2 comprenant: Au rez-de-chaussée : - garage pour 1 voiture avec un emplacement extérieur pour 2 voitures - cuisine spacieuse avec accès vers la terrasse de 15,11m2 et le jardin - grand séjour - hall d'entrée - réserve - WC privatif 1er étage : - 3 chambres - 1 chambre parentale avec salle de douche et dressing - 1 salle de bain - buanderie Combles : - combles aménageables de 65,45 m2 - local technique de 21,60 m2 Prix LOT 16 à p. de : 1.098.000,- € (TVA 17% - pour investissement) Pour plus d'informations veuillez contacter : Fischbach Realtors & Developers immo.fischbach@fischbach.lu +352 45 71 30 1 -- Situation Stegen est un petit village calme à l’est du Luxembourg qui appartient à la commune de la Vallée de l’Ernz dans le canton de Diekirch. La commune a été créée en 2012 par la fusion des communes d’Ermsdorf et de Medernach. Elle se compose des localités d’Ermsdorf, Eppeldorf, Folkendange, Keiwelbach, Medernach, Stegen et Savelborn ainsi que d’une quinzaine de fermes et de maisons individuelles. La commune dispose d’une salle de sport à Medernach et d’un centre de football avec deux terrains synthétiques, nouvellement aménagés au lieu-dit «Bloen Eck» à Stegen. On y trouve également un café-restaurant bien connu du même nom. L’église Saint-Barthélemy au centre de Stegen a été déclarée monument nationale en 2021. Stegen n’est qu’à 10 minutes en voiture du centre d’Ettelbruck. On y trouve une multitude de restaurants, de magasins et d’écoles ainsi que le Centre Hospitalier du Nord. À Ingeldorf (10 minutes en voiture) sont plusieurs grands supermarchés, des magasins d’électroménager et de meubles ainsi que divers ateliers de voitures. À Diekirch (15 minutes en voiture), vous trouverez une grande variété de restaurants et cafés ainsi qu’un cinéma. Écoles Le bâtiment scolaire d’Ermsdorf accueille les enfants du cycle 1 qui habitent dans les localités d’Ermsdorf, Eppeldorf, Stegen, Folkendange ou Keiwelbach. L’infrastructure scolaire de Medernach, qui comprend trois bâtiments, dont deux sont destinés à l’enseignement précoce et préscolaire et un à l’enseignement fondamental des cycles 2.1. à 4.2., accueille environ 250 élèves. La commune de la Vallée de l’Ernz fait actuellement construire un nouveau complexe scolaire pour l’ensemble de la commune à Medernach, qui comprend également une nouvelle maison relais ainsi qu’un nouveau gymnase. Les travaux devraient être terminés pour l’année scolaire 2021/2022. Dans les environs, il y a plusieurs lycées à Ettelbruck, Diekirch ainsi qu’à Luxembourg-ville, tous desservis par les transports en commun et donc facilement accessibles. A Stegen, il y a également une école d’équitation qui propose des cours d’équitation professionnels et organise des tournois. Transports L’arrêt de bus «Bloen Eck» se trouve à proximité immédiate et est desservi par les lignes de bus 101, 105, 409, 504 et 507. Ligne 101: Limpertsberg/LTC – Heffingen – Ettelbruck/LT Ligne 105: Junglinster – Ettelbruck Ligne 409: Mersch – Larochette – Stegen Ligne 504: Ettelbruck – Haller Ligne 507: Diekirch – Ettelbruck – Grevenmacher Les lignes 101 et 507 desservent en outre les lycées de Luxembourg, Ettelbruck et Diekirch pendant la période scolaire. La gare la plus proche est à Ettelbruck (15 minutes en voiture) et est desservie par la ligne 10 du réseau des Chemins de fer luxembourgeois (CFL), qui relie la ville de Luxembourg à Troisvierges. La gare fait actuellement l’objet d’une rénovation complète. Un parking relais « Park & Ride » de plus de 400 places et une nouvelle gare routière font partie du projet. Luxembourg-Gare est accessible en 30 minutes en train. Grâce à l’accès proche à l’autoroute A7 via Ingeldorf, Kirchberg est à uniquement 30 minutes en voiture. Les villes de Mersch et de Esch-sur-Alzette sont à 15 respectivement 50 minutes en voiture. Distances Gare Ettelbruck: 8,5 km Gare Diekirch: 7,9 km Centre Hospitalier du Nord: 9,8 km Bâtiment scolaire Medernach: 4,0 km Bâtiment scolaire Ermsdorf: 4,5 km Gymnase Medernach: 3,9 km Cinéma «Scala» Diekirch: 8,3 km Ville de Luxembourg: 41,6 km Aéroport: 37,5 km -- L'excellent emplacement tout comme la construction et la conception architecturale, la finition de qualité ainsi que l'isolation thermique, garantissent à tout investisseur une stabilité assurée du capital engagé et un rendement adéquat certain et un confort de vie haut de gamme pour l’acquéreur voulant habiter ce bien. FISCHBACH Realtors & Developers vous propose des objets sélectionnés, pour répondre à la demande de notre clientèle. N‘hésitez pas à consulter notre site WWW.FISCHBACH.LU pour découvrir de photos supplémentaires et nos autres biens.Beschrijving
Nouveau lotissement « Nic Meiter – Thiergart » à Stegen LOT 16: maison unifamiliale en bande sur un terrain de 4,17 ares avec une surface habitable de +/- 160 m2 et une surface totale de +/-285m2 comprenant: Au rez-de-chaussée : - garage pour 1 voiture avec un emplacement extérieur pour 2 voitures - cuisine spacieuse avec accès vers la terrasse de 15,11m2 et le jardin - grand séjour - hall d'entrée - réserve - WC privatif 1er étage : - 3 chambres - 1 chambre parentale avec salle de douche et dressing - 1 salle de bain - buanderie Combles : - combles aménageables de 65,45 m2 - local technique de 21,60 m2 Prix LOT 16 à p. de : 1.098.000,- € (TVA 17% - pour investissement) Pour plus d'informations veuillez contacter : Fischbach Realtors & Developers immo.fischbach@fischbach.lu +352 45 71 30 1 -- Situation Stegen est un petit village calme à l’est du Luxembourg qui appartient à la commune de la Vallée de l’Ernz dans le canton de Diekirch. La commune a été créée en 2012 par la fusion des communes d’Ermsdorf et de Medernach. Elle se compose des localités d’Ermsdorf, Eppeldorf, Folkendange, Keiwelbach, Medernach, Stegen et Savelborn ainsi que d’une quinzaine de fermes et de maisons individuelles. La commune dispose d’une salle de sport à Medernach et d’un centre de football avec deux terrains synthétiques, nouvellement aménagés au lieu-dit «Bloen Eck» à Stegen. On y trouve également un café-restaurant bien connu du même nom. L’église Saint-Barthélemy au centre de Stegen a été déclarée monument nationale en 2021. Stegen n’est qu’à 10 minutes en voiture du centre d’Ettelbruck. On y trouve une multitude de restaurants, de magasins et d’écoles ainsi que le Centre Hospitalier du Nord. À Ingeldorf (10 minutes en voiture) sont plusieurs grands supermarchés, des magasins d’électroménager et de meubles ainsi que divers ateliers de voitures. À Diekirch (15 minutes en voiture), vous trouverez une grande variété de restaurants et cafés ainsi qu’un cinéma. Écoles Le bâtiment scolaire d’Ermsdorf accueille les enfants du cycle 1 qui habitent dans les localités d’Ermsdorf, Eppeldorf, Stegen, Folkendange ou Keiwelbach. L’infrastructure scolaire de Medernach, qui comprend trois bâtiments, dont deux sont destinés à l’enseignement précoce et préscolaire et un à l’enseignement fondamental des cycles 2.1. à 4.2., accueille environ 250 élèves. La commune de la Vallée de l’Ernz fait actuellement construire un nouveau complexe scolaire pour l’ensemble de la commune à Medernach, qui comprend également une nouvelle maison relais ainsi qu’un nouveau gymnase. Les travaux devraient être terminés pour l’année scolaire 2021/2022. Dans les environs, il y a plusieurs lycées à Ettelbruck, Diekirch ainsi qu’à Luxembourg-ville, tous desservis par les transports en commun et donc facilement accessibles. A Stegen, il y a également une école d’équitation qui propose des cours d’équitation professionnels et organise des tournois. Transports L’arrêt de bus «Bloen Eck» se trouve à proximité immédiate et est desservi par les lignes de bus 101, 105, 409, 504 et 507. Ligne 101: Limpertsberg/LTC – Heffingen – Ettelbruck/LT Ligne 105: Junglinster – Ettelbruck Ligne 409: Mersch – Larochette – Stegen Ligne 504: Ettelbruck – Haller Ligne 507: Diekirch – Ettelbruck – Grevenmacher Les lignes 101 et 507 desservent en outre les lycées de Luxembourg, Ettelbruck et Diekirch pendant la période scolaire. La gare la plus proche est à Ettelbruck (15 minutes en voiture) et est desservie par la ligne 10 du réseau des Chemins de fer luxembourgeois (CFL), qui relie la ville de Luxembourg à Troisvierges. La gare fait actuellement l’objet d’une rénovation complète. Un parking relais « Park & Ride » de plus de 400 places et une nouvelle gare routière font partie du projet. Luxembourg-Gare est accessible en 30 minutes en train. Grâce à l’accès proche à l’autoroute A7 via Ingeldorf, Kirchberg est à uniquement 30 minutes en voiture. Les villes de Mersch et de Esch-sur-Alzette sont à 15 respectivement 50 minutes en voiture. Distances Gare Ettelbruck: 8,5 km Gare Diekirch: 7,9 km Centre Hospitalier du Nord: 9,8 km Bâtiment scolaire Medernach: 4,0 km Bâtiment scolaire Ermsdorf: 4,5 km Gymnase Medernach: 3,9 km Cinéma «Scala» Diekirch: 8,3 km Ville de Luxembourg: 41,6 km Aéroport: 37,5 km -- L'excellent emplacement tout comme la construction et la conception architecturale, la finition de qualité ainsi que l'isolation thermique, garantissent à tout investisseur une stabilité assurée du capital engagé et un rendement adéquat certain et un confort de vie haut de gamme pour l’acquéreur voulant habiter ce bien. FISCHBACH Realtors & Developers vous propose des objets sélectionnés, pour répondre à la demande de notre clientèle. N‘hésitez pas à consulter notre site WWW.FISCHBACH.LU pour découvrir de photos supplémentaires et nos autres biens. Voir tout - Caractéristiques détaillées
-
Intérieur
Nombre de chambre(s) : 4
Séjour : 1
Séjour double : 1
Salle de bains : 1
Douche : 1
WC séparé : 1
Buanderie : 1
Extérieur
Terrasse : 1
Surface de la terrasse : 15.11 m2
Énergie / Chauffage
Type de chauffage : Eau chaude
Appareil de chauffage : Au sol
Système pour chauffer l'eau : Pompe à chaleur
Ventillation double flux : oui
Triple vitrage : oui
Autres
Garage(s) : 1
Parking ouvert : 2
Alarme : oui
Vidéophone : oui
- Détail des lots










