Maison Mersch
1.457.000 €
Référence : 86840130
Type de bien : Maison
Lieu : Mersch
DPE (Diagnostique de Performance Energétique) : A
Classe d'isolation thermique : B
GES (Gaz à Effet de Serre) : A
Etat du bien : Neuf
- Description
-
Nouveau lotissement "Rue Bouvart" à Mersch
LOT 12: maison jumelée garage sur un terrain de 4,50 ares avec une surface habitable de +/- 174 m2 et une surface totale de +/-221 m2 comprenant:
Rez-de-chaussée:
- hall d'entrée
- wc
- buanderie
- débarras
- séjour / salle à manger / cuisine
- terrasse
- jardin
- garage pour 2 voitures
- emplacement extérieur 2 voitures
Etage 01 :
- hall
- loc. technique
- 3 chambres à coucher
- wc
- salle de douche
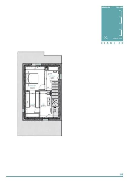
Etage 02 :
- hall / bureau
- chambre parentale avec dressing et sdd
Prix : 1,457,000.00 € (3 % TVA)
Prix : 1,507,000.00 € (17 % TVA - investissement)
Pour plus d'informations veuillez contacter :
Fischbach Realtors & Developers
immo.fischbach@fischbach.lu
+3524571301
Lotissement «Rue Bouvart»
Le lotissement «Rue Bouvart» se situe sur les hauteurs de Mersch, à l’arrière de la rue Bouvart, dans un environnement résidentiel calme et verdoyant. Implanté en contrebas d’une résidence récente réalisée par nos soins, ce nouveau projet bénéficie d’une situation privilégiée alliant tranquillité, ensoleillement et proximité immédiate de toutes les commodités.
Les terrains offrent un cadre idéal pour la construction de maisons uni-familiales modernes, parfaitement intégrées dans un quartier harmonieux et familial.
Environs
Située au cœur du Grand-Duché, la commune de Mersch bénéficie d’une localisation stratégique entre la capitale et le nord du pays. Elle combine les avantages d’une petite ville dynamique avec la qualité de vie d’un environnement naturel préservé.
À proximité directe du lotissement se trouvent:
les commerces, centres commerciaux «Topaze» et «Listo» et supermarchés du plateau du Merscherberg
des restaurants, cafés et services variés
cabinets médicaux et pharmacies
installations sportives et infrastructures communales
Le centre de Mersch propose une offre commerciale complète ainsi que de nombreuses possibilités de loisirs pour toute la famille.
Le parc municipal de 13 hectares, avec ses vastes espaces verts et son petit lac, constitue un véritable poumon vert idéal pour la promenade, le jogging ou les moments de détente en plein air. 🌳
La commune dispose également d’une vie culturelle particulièrement riche grâce au Mierscher Kulturhaus, qui propose spectacles, concerts et événements tout au long de l’année. La bibliothèque Mierscher Lieshaus est un lieu de rencontre apprécié des amateurs de lecture, tandis que le Centre national de littérature met à l’honneur le patrimoine littéraire luxembourgeois.
À seulement quelques minutes se trouve également le Centre Aquatique Krounebierg, offrant bassins sportifs et ludiques, espace wellness et installations extérieures. Au sommet du Krounebierg se dresse un obélisque marquant symboliquement le centre géographique du pays.
Les amateurs de nature apprécieront les nombreuses possibilités de randonnées et de balades à vélo, notamment dans la vallée de l’Eisch et le long de l’Alzette.
Mobilité
Le lotissement bénéficie d’une excellente accessibilité:
Gare ferroviaire et routière de Mersch à quelques minutes
Ligne CFL 10 reliant Troisvierges à Luxembourg-Ville
Temps de trajet d’environ 20 minutes vers la capitale en train
Nombreuses lignes de bus régionales
L’accès rapide à l’autoroute A7 permet de rejoindre:
Kirchberg en ± 20 minutes
Luxembourg-Ville en ± 25 minutes
Ettelbruck et Diekirch en moins de 20 minutes
La piste cyclable de l’Alzette (PC15) traverse la région de Mersch entre la capitale et Ettelbruck, offrant un itinéraire sécurisé pour les déplacements quotidiens comme pour les loisirs.
Écoles et structures d’accueil
Mersch est particulièrement attractive pour les familles grâce à une offre éducative complète:
Enseignement fondamental
Plusieurs écoles fondamentales modernes réparties sur la commune
Structures d’accueil et maisons relais
Enseignement secondaire
Lycée Ermesinde
Lycée Classique de Diekirch – Annexe de Mersch
École internationale Mersch Anne Beffort
Lycée Technique pour professions éducatives et socialesPour plus d'informations veuillez contacter :
Voir tout
Fischbach Realtors & Developers
immo.fischbach@fischbach.lu
+3524571301 - Détail des lots












