Lot 19 - Hellange
1.240.000 €
Référence : 86346995
Type de bien : Maison
Lieu : Hellange
DPE (Diagnostique de Performance Energétique) : A
Classe d'isolation thermique : B
GES (Gaz à Effet de Serre) : A+
Année construction : 2029
Etat du bien : Neuf
- Description
-
Maison unifamiliale jumelée - 1.240.000 € - Hellange
HELLANGE, Construction nouvelles Maisons " Iwwert der Sauerwiss"
LOT 19: Maison unifamiliale jumelée sur un terrain de 3.96ares avec une surface habitable de +/- 150m2 et une surface totale de +/-281m2 comprenant:
Au Rez de chaussée:
- hall d'entrée
- cuisine
- grand séjour avec accès vers la terrasse de 15,05m2 et le jardin
- WC séparé
- garage pour deux voitures
- 1 emplacement extérieur
- buanderie
- réserve
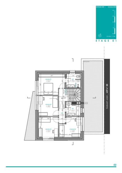
Au 1er étage :
- chambre à coucher parentale avec salle de douche
- 3 chambres à coucher
- une salle de bains
- hall de nuit
Combles:
- un grenier de 79,03m2
Prix LOT 19 à 1.290.000,- €
(TVA 17% - pour investissement)
Pour plus d'informations veuillez contacter :
Fischbach Realtors & Developers
immo.fischbach@fischbach.lu
+352 45 71 30 1Pour plus d'informations veuillez contacter :
Voir tout
Fischbach Realtors & Developers
immo.fischbach@fischbach.lu
+3524571301 - Caractéristiques détaillées
-
Intérieur
Nombre de chambre(s) : 4
Cuisine : 1
Salle à manger : 1
Salle de bains : 1
Douche : 1
WC séparé : 1
Grenier : 1
Extérieur
Terrasse : 1
Surface de la terrasse : 15.05 m2
Énergie / Chauffage
Type de chauffage : Pompe à chaleur
Appareil de chauffage : Au sol
Système pour chauffer l'eau : Pompe à chaleur
Ventillation double flux : oui
Triple vitrage : oui
Autres
Garage(s) : 2
Parking ouvert : 1
Alarme : oui
Vidéophone : oui
- Détail des lots










