Maison 7B - Blaschette
1.089.000 €
Référence : 86657378
Type de bien : Maison jumelée
Lieu : Blaschette
DPE (Diagnostique de Performance Energétique) : A+
Classe d'isolation thermique : A+
GES (Gaz à Effet de Serre) : A+
Année construction : 2029
Etat du bien : Neuf
- Description
-
Nouvelle maison bi-familiale « Rue Neuve » à Blaschette
LOT 7B: maison bifamiliale jumelée sur un terrain de 3,17 ares avec une surface habitable de +/- 176 m2 et une surface totale de +/-219m2
Au rez-de-jardin :
- hall d’entrée
- cuisine spacieuse dans un grand séjour avec accès vers la terrasse de 10,69m2 et le jardin
- réserve
- local technique/buanderie
- WC séparé
Au rez-de-chaussée :
- garage pour 1 voiture et un emplacement extérieur pour 1 voiture
- séjour
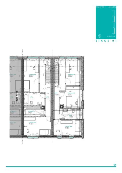
Au 1er étage :
- hall de nuit
- 3 chambres à coucher
- salle de bains
Combles
- 1 chambre parentale avec dressing et SDD
- débarras
NZEB (Nearly Zero Energy Building)
Prix LOT 7B : 1.089.000,- € (TVA 3% - pour habitation)
Prix LOT 7B : 1.139.000,- € (TVA 17% - pour investissement)
Pour plus d'informations veuillez contacter :
Fischbach Realtors & Developers
immo.fischbach@fischbach.lu
+352 45 71 30 1Pour plus d'informations veuillez contacter :
Voir tout
Fischbach Realtors & Developers
immo.fischbach@fischbach.lu
+3524571301 - Caractéristiques détaillées
-
Intérieur
Nombre de chambre(s) : 4
Séjour : 1
Séjour double : 1
Salle de bains : 1
Douche : 1
WC séparé : 1
Buanderie : 1
Extérieur
Jardin : 1
Surface du jardin : 186 m2
Terrasse : 1
Surface de la terrasse : 10.69 m2
Énergie / Chauffage
Type de chauffage : Pompe à chaleur
Appareil de chauffage : Au sol
Système pour chauffer l'eau : Pompe à chaleur
Ventillation double flux : oui
Triple vitrage : oui
Autres
Garage(s) : 1
Parking ouvert : 1
Alarme : oui
Vidéophone : oui
- Détail des lots
-











